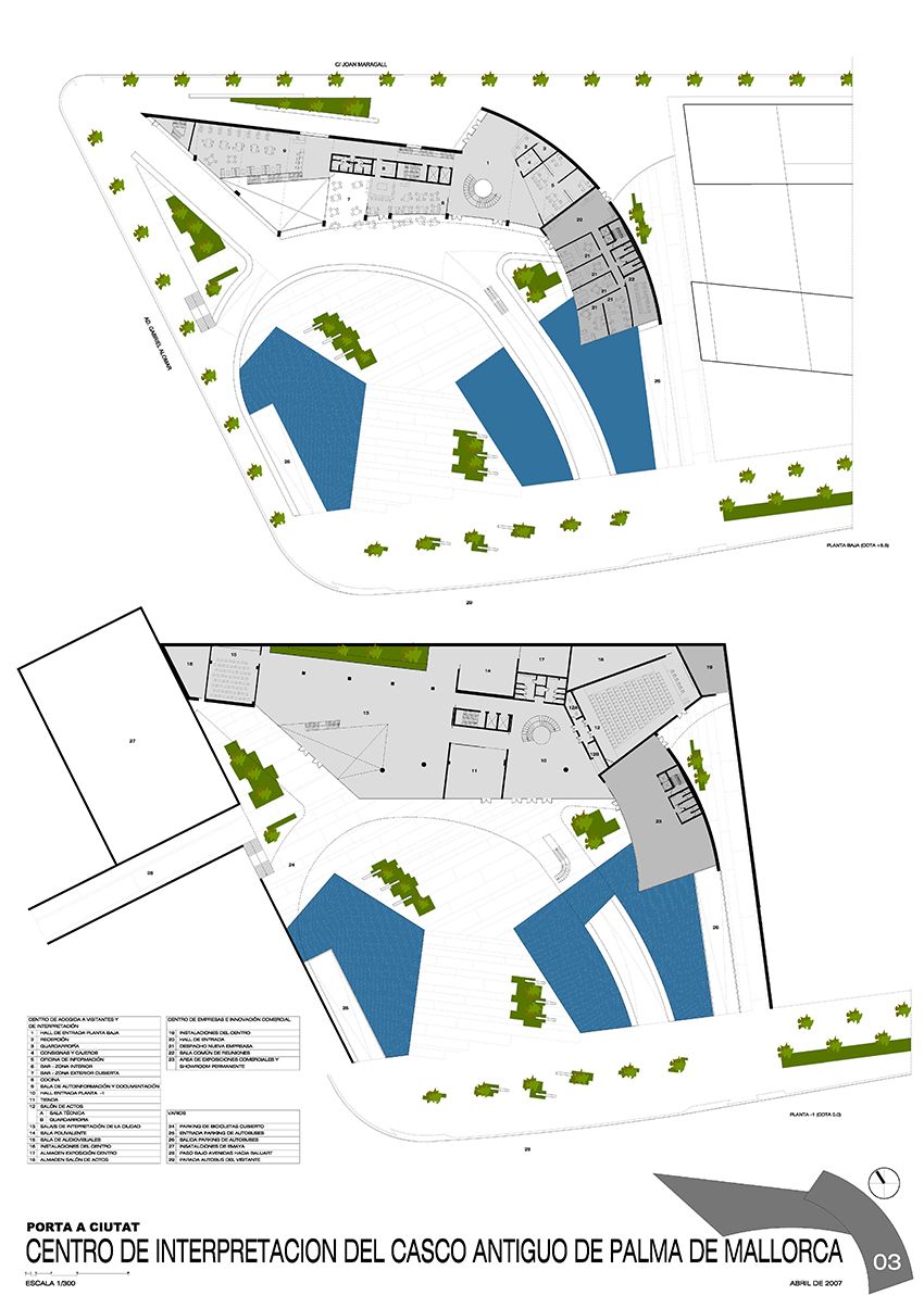
PROYECTO: ​Concurso Centro interpretación casco Antiguo​
ARQUITECTOS: Jaime Salvá y Carlos Ribas
AÑO: 200​7​